
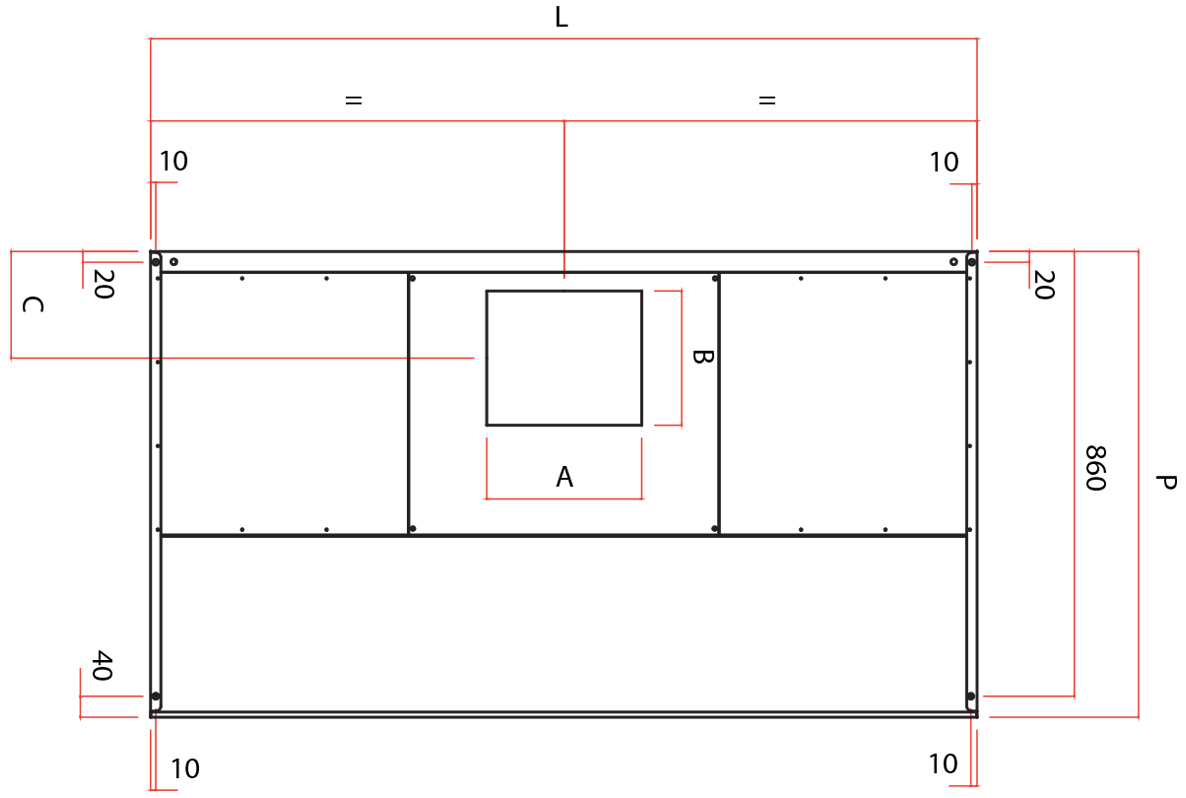
| Modell | Abmessungen BxLxH (mm) |
A x B (mm) |
C (mm) |
Nr. Filter | Gewicht (kg) |
Motor | Anzahl LEDs (jeweils 4W) |
| CSP 7/10 | 700x1000x450 | 230 x 200 | 230 | 2a | 40 | 7/7 | 2 |
| CSP 12.07 | 700x1200x450 | 230 x 200 | 230 | 2b | 42 | 7/7 | 2 |
| CSP 14.07 | 700x1400x450 | 230 x 200 | 230 | 2b | 47 | 7/7 | 2 |
| CSP 16.07 | 700x1600x450 | 230 x 200 | 230 | 3a | 51 | 7/7 | 3 |
| CSP 18.07 | 700x1800x450 | 230 x 200 | 230 | 3b | 54 | 7/7 | 3 |
| CSP 20.07 | 700 x 2000 x 450 | 300 x 260 | 210 | 4a | 59 | 9/9T | 4 |
| CSP 22.07 | 700x2200x450 | 300 x 260 | 210 | 4a | 62 | 9/9T | 4 |
| CSP 24.7 | 700x2400x450 | 300 x 260 | 210 | 4b | 65 | 9/9T | 4 |
| CSP 26.7 | 700x2600x450 | 300 x 260 | 210 | 4b | 68 | 9/9T | 4 |
| CSP 28.7 | 700x2800x450 | 300 x 260 | 210 | 5b | 72 | 8/9T | 5 |
| CSP 30.7 | 700x3000x450 | 300 x 260 | 210 | 5b | 75 | 8/9T | 5 |

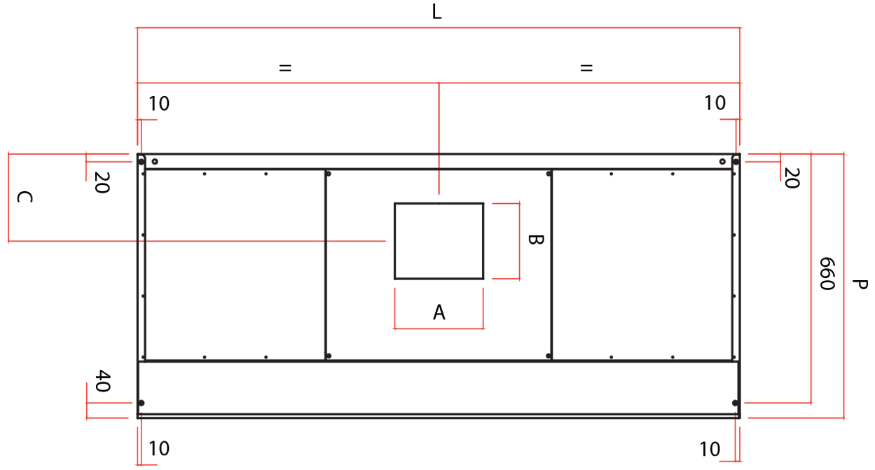
| Modell | Abmessungen BxLxH (mm) |
A x B (mm) |
C (mm) |
Nr. Filter | Gewicht (kg) |
Motor | Anzahl LEDs (jeweils 4W) |
| CSP 9/10 | 900 x 100 x 450 | 230 x 200 | 230 | 2a | 42 | 7/7 | 2 |
| CSP 12.9 | 900 x 120 x 450 | 230 x 200 | 230 | 2b | 46 | 7/7 | 2 |
| CSP 14.9 | 900 x 140 x 450 | 230 x 200 | 230 | 2b | 51 | 7/7 | 2 |
| CSP 16.9 | 900x160x450 | 300 x 260 | 210 | 3a | 55 | 9/9T | 3 |
| CSP 18.9 | 900 x 180 x 450 | 300 x 260 | 210 | 3b | 58 | 9/9T | 3 |
| CSP 20.09 | 900 x 200 x 450 | 300 x 260 | 210 | 4a | 63 | 9/9T | 4 |
| CSP 22.9 | 900 x 220 x 450 | 300 x 260 | 210 | 4a | 67 | 9/9T | 4 |
| CSP 24.9 | 900 x 240 x 450 | 300 x 260 | 210 | 4b | 70 | 8/9T | 4 |
| CSP 26.9 | 900 x 260 x 450 | 300 x 260 | 210 | 4b | 77 | 8/9T | 4 |
| CSP 28.9 | 900 x 280 x 450 | 300 x 260 | 210 | 5b | 82 | 8/9T | 5 |
| CSP 30.9 | 900 x 300 x 450 | 300 x 260 | 210 | 5b | 86 | 8/9T | 5 |
Die an der Haube installierten Elektroventilatoren bestehen aus Einphasenmotoren mit 230 Volt und 50 Hz.
Filterlegende:
a: 400 x 400 mm;
b: 500 x 400 mm;
c: 400 x 500 mm;
d: 500 x 500 mm.