

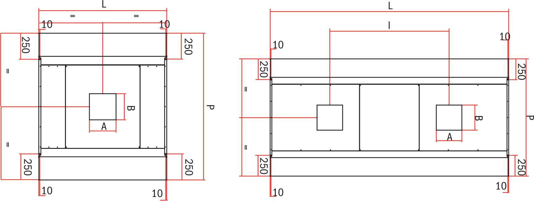
| Modell | Abmessungen BxLxH (mm) |
A x B (mm) |
C (mm) |
Nr. Filter | Gewicht (kg) |
Durchfluss* (m3/h) | DER (mm) |
| CI 14/12 | 1400 x 1200 x 450 | 250 x 250 | = | 4b | 60 | 2100 | |
| IC 14/14 | 1400x1400x450 | 250 x 250 | = | 4b | 64 | 2500 | |
| CI 14/16 | 1400x1600x450 | 300 x 300 | = | 6a | 68 | 2800 | |
| IC 14/18 | 1400 x 1800 x 450 | 300 x 300 | = | 6b | 72 | 3200 | |
| CI 14/20 | 1400 x 2000 x 450 | 300 x 300 | = | 8a | 76 | 3500 | |
| IC 14/22 | 1400 x 2200 x 450 | 400 x 300 | = | 8a | 80 | 3950 | |
| CI 14/24 | 1400 x 2400 x 450 | 400 x 300 | = | 8b | 84 | 4200 | |
| CI 14/26 | 1400 x 2600 x 450 | 300 x 300 x 2 | = | 8b | 88 | 4600 | 1300 |
| CI 14/28 | 1400 x 2800 x 450 | 300 x 300 x 2 | = | 10b | zweiundneunzig | 4900 | 1400 |
| CI 14/30 | 1400 x 3000 x 450 | 300 x 300 x 2 | = | 10b | 96 | 5300 | 1500 |
| CI 14/32 | 1400 x 3200 x 450 | 300 x 300 x 2 | = | 10b | 100 | 5600 | 1600 |
| CI 14/34 | 1400 x 3400 x 450 | 300 x 300 x 2 | = | 12b | 104 | 6000 | 1700 |
| CI 14/36 | 1400 x 3600 x 450 | 300 x 300 x 2 | = | 12b | 108 | 6400 | 1800 |
| CI 14/38 | 1400 x 3800 x 450 | 300 x 300 x 2 | = | 12b | 120 | 6700 | 1900 |

| Modell | Abmessungen BxLxH | A x B | C | Nr. Filter | Gewicht | Durchfluss* (m3/h) | DER |
| (mm) | (mm) | (mm) | (kg) | (mm) | |||
| IC 18/12 | 1800x1200x450 | 300 x 300 | = | 4d | 64 | 2750 | |
| CI 18/14 | 1800x1400x450 | 300 x 300 | = | 6c | 68 | 3200 | |
| CI 18/16 | 1800x1600x450 | 300 x 300 | = | 6c | 72 | 3650 | |
| CI 18/18 | 1800x1800x450 | 400 x 300 | = | 6d | 76 | 4050 | |
| CI 18/20 | 1800 x 2000 x 450 | 400 x 300 | = | 8c | 80 | 4550 | |
| CI 18/22 | 1800 x 2200 x 450 | 400 x 300 | = | 8c | 84 | 5000 | |
| CI 18/24 | 1800 x 2400 x 450 | 300 x 300 x 2 | = | 8d | 88 | 5450 | 1200 |
| CI 18/26 | 1800 x 2600 x 450 | 300 x 300 x 2 | = | 8d | zweiundneunzig | 5900 | 1300 |
| CI 18/28 | 1800x2800x450 | 300 x 300 x 2 | = | 10d | 96 | 6350 | 1400 |
| CI 18/30 | 1800 x 3000 x 450 | 300 x 300 x 2 | = | 10d | 100 | 6800 | 1500 |
| CI 18/32 | 1800 x 3200 x 450 | 300 x 300 x 2 | = | 10d | 106 | 7250 | 1600 |
| CI 18/34 | 1800 x 3400 x 450 | 300 x 300 x 2 | = | 12d | 112 | 7700 | 1700 |
| CI 18/36 | 1800x3600x450 | 300 x 300 x 2 | = | 12d | 116 | 8200 | 1800 |
| CI 18/38 | 1800 x 3800 x 450 | 300 x 300 x 2 | = | 12d | 123 | 8600 | 1900 |

| Modell | Abmessungen BxLxH | A x B | C | Nr. Filter | Gewicht | Durchfluss* (m3/h) | DER |
| (mm) | (mm) | (mm) | (kg) | (mm) | |||
| IC 22/12 | 2200 x 1200 x 450 | 300 x 300 | = | 4d | 71 | 3300 | |
| IC 22/14 | 2200 x 1400 x 450 | 300 x 300 | = | 6c | 75 | 3900 | |
| CI 22/16 | 2200 x 1600 x 450 | 300 x 300 | = | 6c | 79 | 4450 | |
| CI 22/18 | 2200x1800x450 | 400 x 300 | = | 6d | 83 | 5000 | |
| CI 22/20 | 2200 x 2000 x 450 | 400 x 300 | = | 8c | 87 | 5550 | |
| CI 22/22 | 2200 x 2200 x 450 | 400 x 300 | = | 8c | 91 | 6100 | |
| CI 22/24 | 2200 x 2400 x 450 | 300 x 300 x 2 | = | 8d | 96 | 6660 | 1200 |
| CI 22/26 | 2200 x 2600 x 450 | 300 x 300 x 2 | = | 8d | 101 | 7200 | 1300 |
| CI 22/28 | 2200 x 2800 x 450 | 300 x 300 x 2 | = | 10d | 106 | 7800 | 1400 |
| CI 22/30 | 2200 x 3000 x 450 | 300 x 300 x 2 | = | 10d | 110 | 8300 | 1500 |
| CI 22/32 | 2200 x 3200 x 450 | 300 x 300 x 2 | = | 10d | 115 | 8850 | 1600 |
| CI 22/34 | 2200 x 3400 x 450 | 300 x 300 x 2 | = | 12d | 120 | 9450 | 1700 |
| CI 22/36 | 2200 x 3600 x 450 | 300 x 300 x 2 | = | 12d | 125 | 10000 | 1800 |
| CI 22/38 | 2200 x 3800 x 450 | 300 x 300 x 2 | = | 12d | 130 | 15000 | 1900 |
